(TXT) View Source
       
       # TOSHIBA
       
          XM-2402B
       
          Device Type       Internal CD-ROM                              
          Interface         ATAPI                                        
          Spin Rate         10x                                          
          (Read/Write)      
          Formats Supported CD-XA, CD-G, CD-I, CD-I Ready, CD-ROM (Mode  
          Read              1 & Mode 2), Photo-CD, Video CD, Red &       
                            Yellow Book, CD-E                            
          View              Top                                          
       
 (IMG) IMG 1
          
       
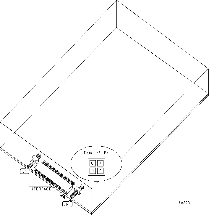
          +------------------------------------------------------------+
          |                        CONNECTIONS                         |
          |------------------------------------------------------------|
          |                  Function                   |    Label     |
          |---------------------------------------------+--------------|
          | Digital audio out                           |      J1      |
          +------------------------------------------------------------+
       
          +------------------------------------------------------------+
          |                     ATAPI MASTER/SLAVE                     |
          |------------------------------------------------------------|
          |            Setting            |            JP1             |
          |-------------------------------+----------------------------|
          | Master in two drive system    |            Open            |
          |-------------------------------+----------------------------|
          | Slave in two drive system     |     Pins C & D closed      |
          +------------------------------------------------------------+
       
          +------------------------------------------------------------+
          |               MISCELLANEOUS TECHNICAL NOTES                |
          |------------------------------------------------------------|
          | Drive was designed to be installed in a laptop.            |
          +------------------------------------------------------------+